-
鍛造法蘭
優質碳鋼法蘭,無砂眼、氣孔。
-
環氧樹脂噴涂法蘭
法蘭噴涂采用世界知名品牌阿克蘇的環氧樹脂塑粉,附著力強,劃格法0-1級通過;沖擊強度高,50kg?cm正沖通過。
-
法蘭及法蘭螺栓孔倒角處理
法蘭內鍛面弧度為R=67°,法蘭與橡膠球摩擦阻力小,防止球體被劃傷。 螺栓孔進行1*45°的倒角處理,防止操作人員被劃傷。
-
進口EPDM橡膠球體
抗拉、抗壓、耐老化、耐高溫、耐低溫,比常規橡膠多使用2年。
-
超標準內襯層數
橡膠球球體內骨架層數超過市場同類產品20%。
-
加厚橡膠球端面
橡膠球兩端面厚度增加10mm,增加鋼絲圈,防止球體拉脫,耐扭曲,抗震震系數提高10%。
-
出廠檢驗
每臺產品出廠前都會進行球體外觀、硬度、氣密性、承壓和法蘭防拉脫等檢驗。
-
產品可追溯
不銹鋼304標牌,包含品牌、口徑、壓力、材質,編碼等產品身份標識信息,確保產品可追溯。
-
密封效果更高
橡膠球連接端面采用德國密紋水線,密封效果提高30%。
產品優點
產品介紹
KXT型可曲撓橡膠接頭是可曲撓橡膠接頭的一種,又叫做橡膠管軟接頭,柔性橡膠接頭,高壓橡膠接頭,橡膠減震器,補償器等。該產品是由織物增強的橡膠件與平形活接頭、套金屬法蘭或螺紋管法蘭組成,用于管道隔振降噪、補償位移的接頭。可降低振動及噪聲,并可對因溫度變化引起的熱脹冷縮起補償作用,廣泛應用于各種管道系統。它是一種高彈性、高氣密性、耐介質性和耐氣候性的管道接頭。
產品參數

閥門執行標準 | 名稱 | 設計及制造 | 結構長度 | 試壓標準 | 法蘭尺寸 | ||||
參照標準 | GB/T 26121-2010 | GB/T 26121-2010 | GB/T 26121-2010 | GB/T 9119-2010 | |||||
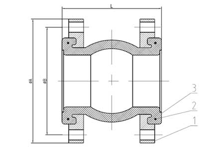
主要零部件信息 | 名稱 | 1-球體 | 2-鋼圈 | 3-法蘭 | |||||
材質及說明 | EPDM復合材料 | Q235 | Q235 | ||||||
尺寸信息 | 公稱尺寸 | L | PN10 | PN16 | PN25 | ||||
DN | NPS(英寸) | ΦA | ΦB | ΦA | ΦB | ΦA | ΦB | ||
40 | 1 1/2'' | 95 | 150 | 110 | 150 | 110 | 150 | 110 | |
50 | 2'' | 105 | 165 | 125 | 165 | 125 | 165 | 125 | |
65 | 2 1/2'' | 115 | 185 | 145 | 185 | 145 | 185 | 145 | |
80 | 3'' | 135 | 200 | 160 | 200 | 160 | 200 | 160 | |
100 | 4'' | 150 | 220 | 180 | 220 | 180 | 235 | 190 | |
125 | 5'' | 165 | 250 | 210 | 250 | 210 | 270 | 220 | |
150 | 6'' | 180 | 285 | 240 | 285 | 240 | 300 | 250 | |
200 | 8'' | 210 | 340 | 295 | 340 | 295 | 360 | 310 | |
250 | 10'' | 230 | 395 | 350 | 405 | 355 | 425 | 370 | |
300 | 12'' | 245 | 445 | 400 | 460 | 410 | 485 | 430 | |
350 | 14'' | 255 | 505 | 460 | 520 | 470 | 555 | 490 | |
400 | 16'' | 255 | 565 | 515 | 580 | 525 | 620 | 550 | |
450 | 18'' | 255 | 615 | 565 | 640 | 585 | 670 | 600 | |
500 | 20'' | 255 | 670 | 620 | 715 | 650 | 730 | 660 | |
600 | 24'' | 260 | 780 | 725 | 840 | 770 | 845 | 770 |
