-
精密鑄造閥體
閥體為精密鑄造閥體,二次拋丸處理、外觀精細,無沙眼;
-
精密加工內件
內件數控精密設備加工,保證精度;
-
實心重體
閥體均為實心重體;
-
倒密封處理防外漏
閥蓋和閥桿接觸的地方做倒密封處理,防止外漏;
-
外表銀白光亮耐腐蝕
每臺閥體進行表面酸洗鈍化處理, 使鑄件外表呈均勻銀白光亮色澤,保持金屬光澤, 提高耐蝕性;
-
雙層壓力檢測
每臺閥門出廠均按照國家標準做殼體、密封雙層壓力檢測。
-
-
-
產品優點
產品介紹
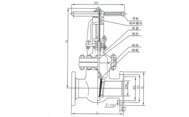
閘閥的啟閉件是閘板,閘板的運動方向與流體方向相垂直,閘閥只能作全開和全關,不能作調節和節流,閘板有兩個密封面 , 兩個密封面形成楔形;不銹鋼閘閥是閘閥的一種,對閥體材質要求比較高一般有304、316等幾個材質選擇,廣泛應用于化工、船舶、醫藥、食品、電力能源、冶金等行業。
產品參數

執行標準 | 名稱 | 設計及制造 | 結構長度 | 試壓標準 | 連接法蘭尺寸 | |||||
參照標準 | GB/T 12234 API 600 |
GB/T 12221 ASME B16.10 |
GB/T 13927 API 598 |
JB/T 79 ASME B16.5 |
||||||
主要零部件信息 | 名稱 | 閥體 | 閥板 | 閥桿 | 閥座密封 | 手輪 | ||||
材質及說明 | 304 | 304 | 304 | 304 | DI | |||||
尺寸信息 | 公稱尺寸 | PN16 | 150LB | |||||||
DN | NPS英寸 | L | D | D1 | Z-φd | L | D | D1 | Z-φd | |
50 | 2'' | 250 | 160 | 125 | 4-18 | 178 | 152 | 120.5 | 4-19 | |
65 | 2 1/2'' | 265 | 180 | 145 | 4-18 | 190 | 178 | 139.5 | 4-19 | |
80 | 3'' | 280 | 195 | 160 | 8-18 | 203 | 190 | 152.5 | 4-19 | |
100 | 4'' | 300 | 215 | 180 | 8-18 | 229 | 229 | 190.5 | 8-19 | |
125 | 5'' | 325 | 245 | 210 | 8-18 | 254 | 254 | 216 | 8-22 | |
150 | 6'' | 350 | 280 | 240 | 8-22 | 267 | 279 | 241.5 | 8-22 | |
200 | 8'' | 400 | 335 | 295 | 12-22 | 292 | 343 | 298.5 | 8-22 | |
250 | 10'' | 450 | 405 | 355 | 12-26 | 330 | 406 | 362 | 12-25 | |
300 | 12'' | 500 | 460 | 410 | 12-26 | 356 | 483 | 432 | 12-25 | |
350 | 14'' | 550 | 520 | 470 | 16-26 | 381 | 533 | 476 | 12-29 | |
400 | 16'' | 600 | 580 | 525 | 16-30 | 406 | 597 | 540 | 16-29 |
